<<
>>
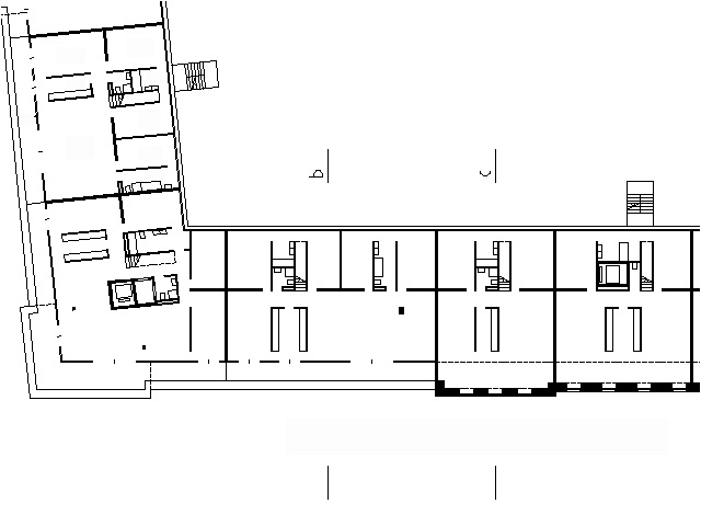
Die Wohnungen sind beidseitig belichtet. Grosszügige Glasfassaden auf beiden Seiten eröffnen freie Blicke auf die Stadt. Dem Wohnraum sind breite Balkone zugeordnet. Die Zimmer sind in den ruhigen Hof ausgerichtet.
Ebene +43,42m