<<
>>
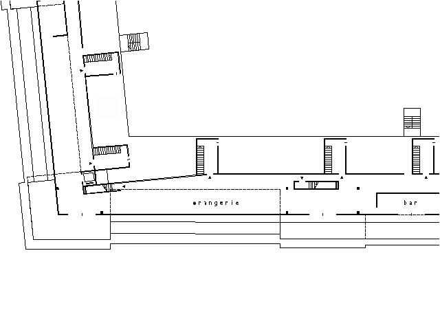
Auf der mittleren Ebene werden die Wohnungen über einen breiten Boulevard erschlossen. Hier befinden sich Portier, Bar, Orangerie, etc.

Ebene +46,37m